Holloway Road

Commercial Property for Sale

£1,250,000

Calculate your mortgage repayments

Description

LOCATION
The premises are located on the East side of this extremely busy thoroughfare in the heart of this densely populated commercial and residential catchment area.

Nearby operators include Waitrose, Boots, Argos, JD sports, VUE cinema and numerous local and independent traders. Transport facilities are excellent with Holloway Road Underground Station (Piccadilly Line) nearby and numerous bus routes serving the immediate area.

DESCRIPTION
This mixed used building is comprised of an E Class unit on the ground floor, 3 bedroom first floor flat and a 3 bedroom second-floor flat currently arranged on an HMO license.

The first floor flat is currently arranged as a 3 bedroom flat, under an HMO license.

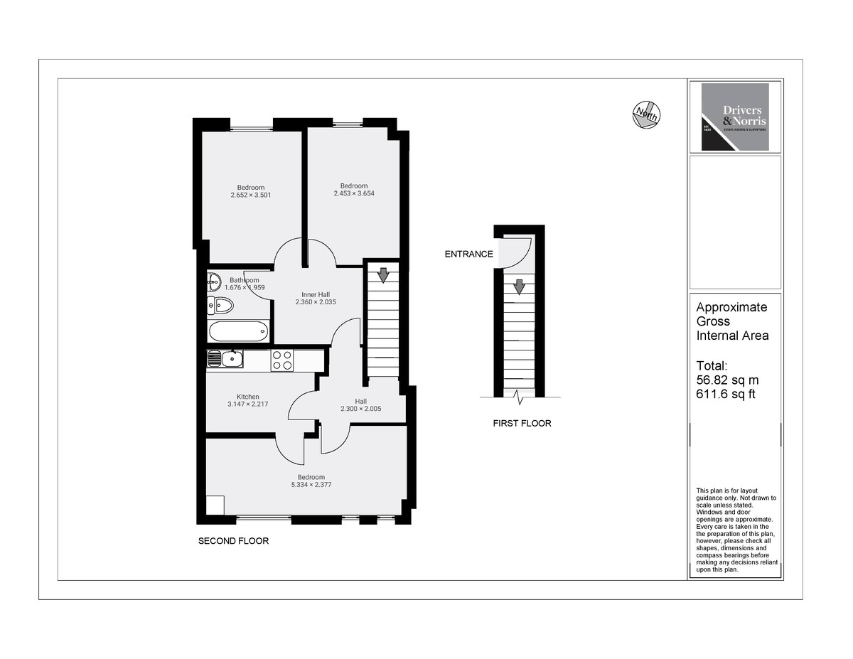
The second floor flat provides generous accommodation and is currently arranged as a 3 bedroom flat, under an HMO license.

The commercial unit occupies the ground floor only. The commercial unit features the main gallery floor, a small office/commercial kitchen at the rear, and a WC.

Full Repairing and Insuring Lease for a term of 15 years outside of the Landlord and Tenant Act 1954, commenced 13th August 2021 subject to 5 yearly rent reviews (August 2026 & August 2031, with break dates at August 2026 & August 2031. Passing rent £42,660 per annum.

ACCOMMODATION
Commercial unit area: 858.6 Sq Ft (79.7 Sq M)

First floor 39.91 Sq M / 429.58 Sq FT
Second Floor 56.82 Sq M / 611.6 Sq Ft

AMENITIES
3 Bedroom First Floor Flat - Tenanted (HMO License) - Term: 24 Months. Commencing on: 01 March 2025. Rent: £2,350.00 per calendar month

3 Bedroom Second Floor Flat - Tenanted (HMO License) - Term of the tenancy:36 Months. Commencment date; from and including : 05 February 2024, expiry date; to and including : 04 February 2027
Rent - £2,350.00 pcm

Ground Floor E Class Commercial unit - Tenanted (currently trading as an North London Furniture)

Total income - £99,060 per annum.

TERMS
Freehold Sale

OUTGOINGS
Parties are advised to make enquiries with the local authority.

LEGAL COSTS
Each party to bear own legal costs.

VIEWING
Strictly by appointment through Sole Agents Drivers and Norris

Tenure: Freehold


Location


Floorplan

Floorplan Floorplan

EPC


*This mortgage calculator is provided for general information purposes only. It's intended to provide you with an estimate of your potential mortgage payments and does not constitute an offer of finance or advice. The calculations are based on the information you provide and do not take into account your individual needs and circumstances.

The calculator does not include all the costs you will need to pay when taking out a mortgage. Your actual mortgage payments may be higher or lower than the estimates provided by this calculator. The interest rates used in the calculations are subject to change and may not reflect the actual rates available in the market.

Please note that the calculator does not consider changes in interest rates over time, early repayment charges, or any other fees and charges that may apply to your mortgage. You should always seek professional advice before making any financial decisions.

Remember, your home may be repossessed if you do not keep up repayments on your mortgage.

Calculate Your Stamp Duty
£
Results
Stamp Duty To Pay:
Effective Rate:
Tax Band % Taxable Sum Tax

£ 0
£ 0
Your estimated gross rental yield would be:
0.00%

Drivers & Norris

407/409 Holloway Road, London, N7 6HP

Similar Properties

Holloway, London
For Sale

Holloway, London

2 Bed Ground floor flat For Sale
£650,000
Islington, London
For Sale

Islington, London

1 Bed Property For Sale
Guide Price £285,000
Holloway, London
For Sale

Holloway, London

1 Bed Ground floor flat For Sale
£365,000