Compton Street

Commercial Property for Sale

£1,100,000

Calculate your mortgage repayments

Description

LOCATION
Located on the northern side of Compton Street, located by the junction of St John Street, comprising a busy residential and commercial area with high footfall. Farringdon underground station is a 9-minute walk away (0.4 miles), and Barbican underground station is also approximately an 11-minute walk away (0.7 miles); however, the area is well sought after with various transport links nearby.

The property is situated within a conservation area & is a grade II listed building.

DESCRIPTION
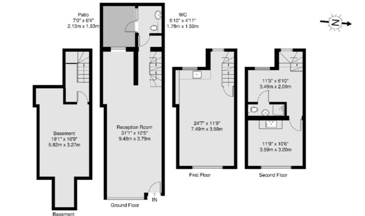
The premises are arranged over basement, ground, first, and second-floor levels, with access via Compton Street.

The basement floor comprises one room, suitable for storage.

The ground floor features a retail area to the front (currently trading as a hairdresser), with a WC and patio area to the rear.

The first floor comprises one main room and a kitchenette, also dedicated to the hairdressing business.

The second floor comprises two additional rooms. This floor could also be used for residential purposes (with Council Tax payable), as the building benefits from a multipurpose use clause (subject to owner's consent).


ACCOMMODATION
Total Area: 1,267 Sq Ft / 117.7 Sq M

AMENITIES
Freehold Sale
Good Decorative Order
Prominent Position
Prime Central Location

TERMS
Freehold Sale

OUTGOINGS
Prospective tenants are advised to make their own enquiries with the Local Authority.

VAT
The sale is subject to VAT. However, there is a possibility that VAT will not apply if the transaction is structured as a Transfer of a Going Concern (TOGC). This treatment would require the buyer to maintain the current tenant for a minimum period (which can be arranged) and satisfy all other necessary TOGC conditions.

LEGAL COSTS
Each party to bear own legal costs.

VIEWING
Strictly via the Landlord's agent, Drivers and Norris.

Tenure: Freehold


Location


Floorplan

Floorplan

EPC


*This mortgage calculator is provided for general information purposes only. It's intended to provide you with an estimate of your potential mortgage payments and does not constitute an offer of finance or advice. The calculations are based on the information you provide and do not take into account your individual needs and circumstances.

The calculator does not include all the costs you will need to pay when taking out a mortgage. Your actual mortgage payments may be higher or lower than the estimates provided by this calculator. The interest rates used in the calculations are subject to change and may not reflect the actual rates available in the market.

Please note that the calculator does not consider changes in interest rates over time, early repayment charges, or any other fees and charges that may apply to your mortgage. You should always seek professional advice before making any financial decisions.

Remember, your home may be repossessed if you do not keep up repayments on your mortgage.

Calculate Your Stamp Duty
£
Results
Stamp Duty To Pay:
Effective Rate:
Tax Band % Taxable Sum Tax

£ 0
£ 0
Your estimated gross rental yield would be:
0.00%

Drivers & Norris

407/409 Holloway Road, London, N7 6HP