Junction Road

Commercial Property Under Offer

£35,000 yearly

Key Features

  • * DUE TO RELOCATION * Excellent A1/A2 Opportunity 961 SQFT Lease For Sale

Description

LOCATION
Situated on Junction Road, set in a desirable location, in a densely populated commercial and residential catchment. Various transport serve the immediate area, with Tufnell Park Underground Station within easy reach, complemented by numerous local bus routes.

DESCRIPTION
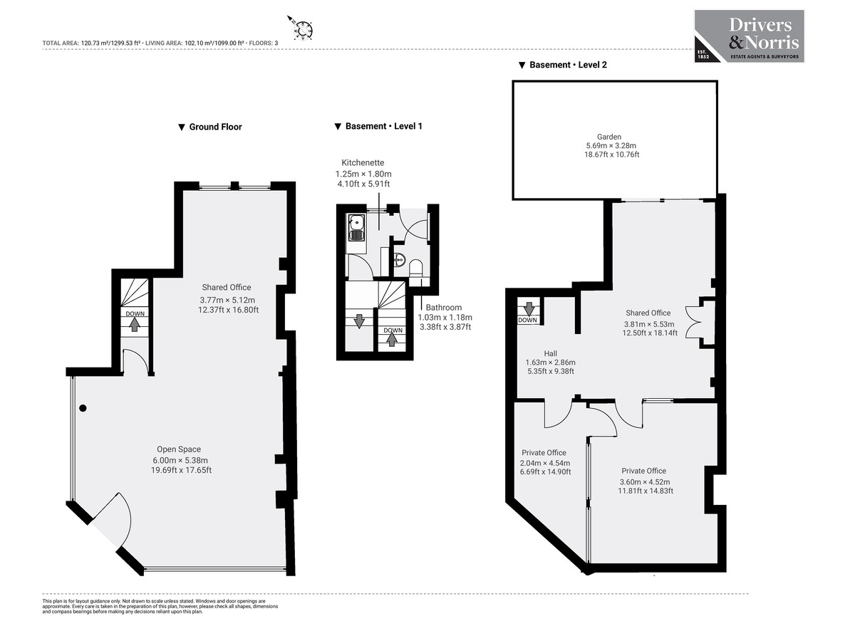
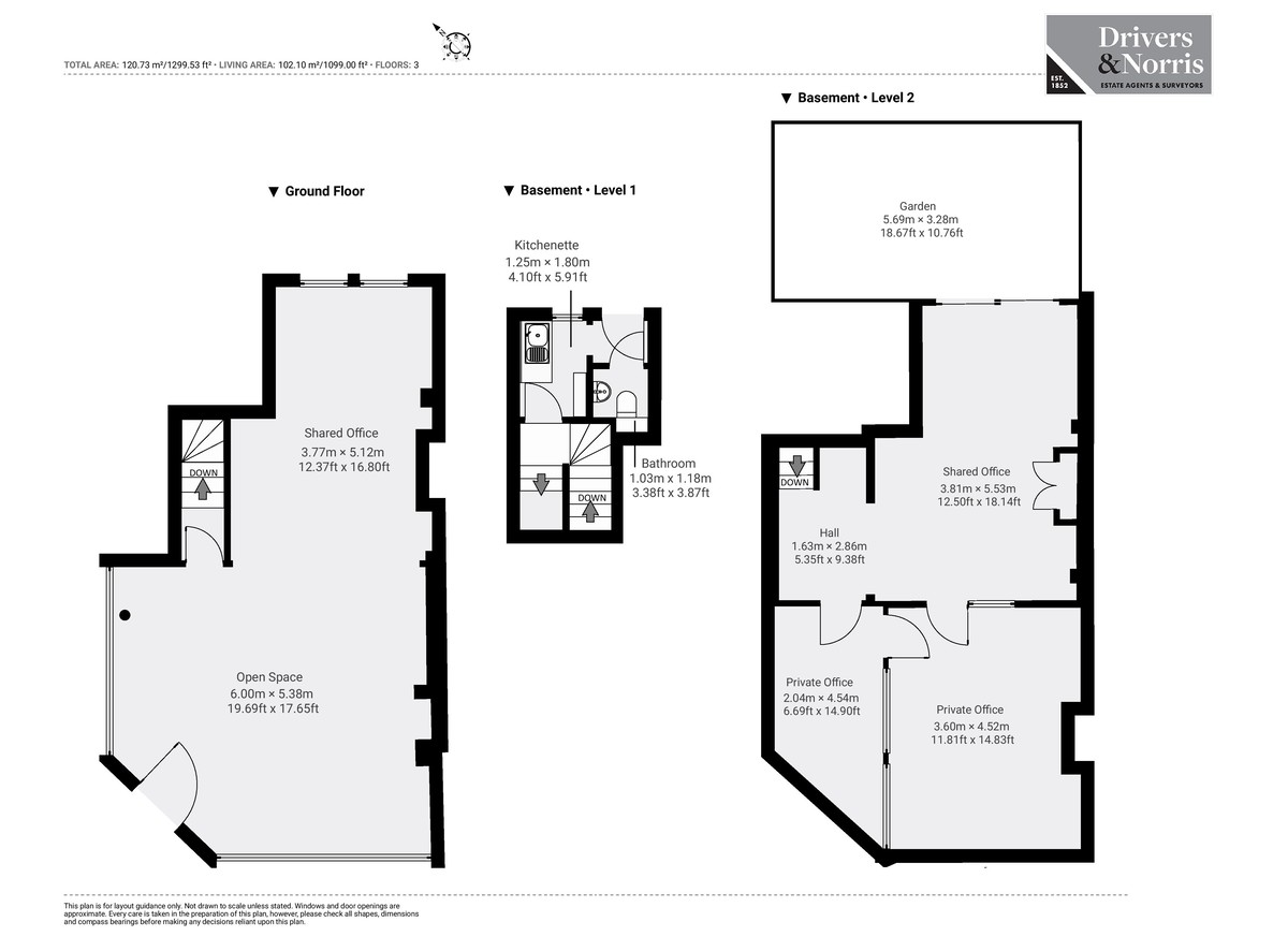
The premises span the ground and basement levels and benefit from Class E use.

The ground floor features a retail area with a vastly open-plan section to the front and a private office area to the rear.

The basement is split into two sections. The first level contains a kitchenette and WC, with stairs leading down to three private offices and providing access to a rear garden.

ACCOMMODATION
Gross internal Area: 1099 Sq Ft (102 Sq M)

AMENITIES
Ground & Basement Levels
Numerous transport links
New Lease
Class E Use

TERMS
Available on a new full repairing and insuring lease outside the landlord & tenant act, subject to periodic rent reviews.

OUTGOINGS
Parties are advised to make their own enquires with the local authority.

VIEWING
Strictly via the Landlord's sole agent, Drivers & Norris.


Location


Floorplan

Floorplan Floorplan

EPC


Drivers & Norris

407/409 Holloway Road, London, N7 6HP

Similar Properties

Hornsey Road, Hornsey
To Rent

Hornsey Road, Hornsey

0 Bed Commercial Property To Rent
£15,000 PCM
Tufnell Park, Islington, London
To Rent

Tufnell Park, Islington, London

0 Bed Commercial Property To Rent
£30,000 PCM
Junction Road, Archway
To Rent

Junction Road, Archway

0 Bed Commercial Property To Rent
£26,500 PCM