LOCATION
The premises are located on the West side of this extremely busy thoroughfare in the heart of this densely populated commercial and residential catchment area alsmos opposite the Nags Head shopping centre. Nearby operators include Waitrose, Boots, Argos, Mcdonalds and numerous local and independent traders. Transport facilities are excellent with Holloway Road Underground Station (Piccadilly Line) nearby and numerous bus routes serving the immediate area.
DESCRIPTION
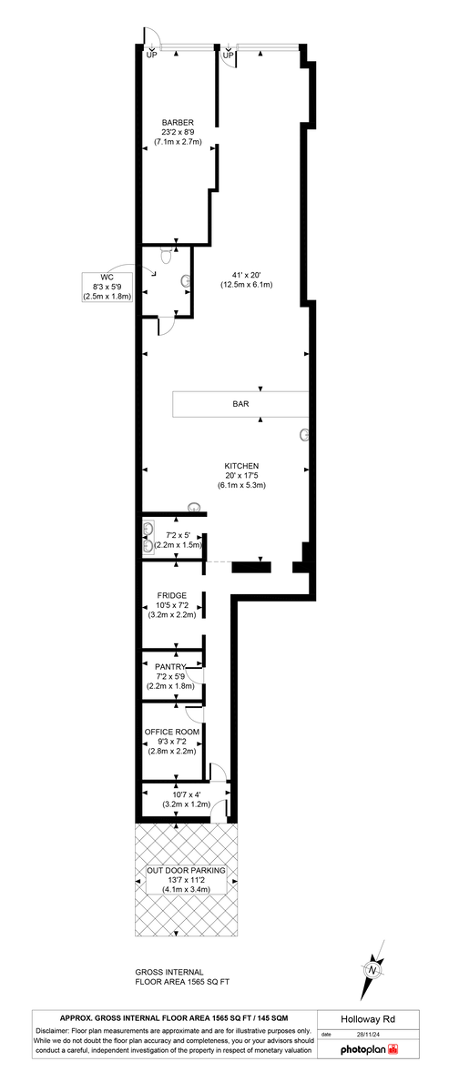
The unit occupies the entire ground floor with access from the rear via a service road. Currently arranged as a restaurant/dessert parlour with a parking space to the rear.
ACCOMMODATION
Ground floor gross floor area
145 sq m / 1,565 sq ft
AMENITIES
Glass frontage
Extraction System/Kitchen
Customer WC
Parking space at the rear
Alcohol License
TERMS
Available on assignment of existing Full Repairing and Insuring Lease with approx 12 Years remaining (16 year lease) inside the Landlord and Tenant Act, subject to 4 yearly reviews.
Premium of £180,000 sought for the benefit of fixtures and fittings and lease.
OUTGOINGS
Parties are advised to make their own enquiries with the Local Authority.
VIEWING
Strictly by appointment with Drivers and Norris.