Brooksby Mews, Islington, London

Commercial Property Under Offer

£500,000

Calculate your mortgage repayments

Description

LOCATION
The unit is located on a private close just off Brooksby Street, next to the junction with Liverpool Road which runs parallel to Upper Street and the A1. This is the main route north from Central London.

The unit is within walking distance of Angel Underground Station as well as Highbury & Islington Underground and Caledonian Road & Barnsbury Overground stations. Kings Cross is just over a mile away providing links to Continent with Eurostar.

DESCRIPTION
Rare commercial space available in central location. Situated in mews forming part of period property in the heart of Barnsbury. Previously used by the motor trade, now light industrial. Had been completly renovated, restored and decorated to a high standard in 2017.

Rented until 2027 where the lease is outside the provisions of the 1954 Landlord and Tenant Act, rent currently achieved £25,000 pa.

ACCOMMODATION
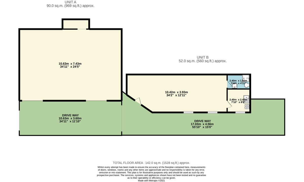
Main Workshop 946 Sq ft / 88 m2
Rear Workshop 588 Sq ft / 53 m2
Total 1513 Sq ft / 141 m2

TERMS
Sale of freehold title

LEGAL COSTS
Strictly by appointment through Drivers and Norris.

PLANNING
The units have both been subject to change of use. The larger unit has E-class use and is suitable for a number of uses. The smaller unit has Sui Generis use. Any purchaser would have time to make a submission for what they need, during the course of the remiaing 2 years of the existing tenancy.

Tenure: Freehold


Location


Floorplan

Floorplan

EPC


*This mortgage calculator is provided for general information purposes only. It's intended to provide you with an estimate of your potential mortgage payments and does not constitute an offer of finance or advice. The calculations are based on the information you provide and do not take into account your individual needs and circumstances.

The calculator does not include all the costs you will need to pay when taking out a mortgage. Your actual mortgage payments may be higher or lower than the estimates provided by this calculator. The interest rates used in the calculations are subject to change and may not reflect the actual rates available in the market.

Please note that the calculator does not consider changes in interest rates over time, early repayment charges, or any other fees and charges that may apply to your mortgage. You should always seek professional advice before making any financial decisions.

Remember, your home may be repossessed if you do not keep up repayments on your mortgage.

Calculate Your Stamp Duty
£
Results
Stamp Duty To Pay:
Effective Rate:
Tax Band % Taxable Sum Tax

£ 0
£ 0
Your estimated gross rental yield would be:
0.00%

Drivers & Norris

407/409 Holloway Road, London, N7 6HP

Similar Properties

St Johns Way
For Sale

St Johns Way

0 Bed Commercial Property For Sale
£1,100,000
St Johns Way
For Sale

St Johns Way

0 Bed Commercial Property For Sale
£1,750,000
Muswell Hill, London
For Sale

Muswell Hill, London

2 Bed Flat For Sale
Guide Price £379,950