Georges Place

Commercial Property for Sale

£200,000

Calculate your mortgage repayments

Description

LOCATION
Situated near the junction of Dongola Road and Philip Lane (B153), the property provides easy access to the A10, while the North Circular is just 2.2 miles away. Bruce Grove Overground Station is 0.7 miles distant, with Tottenham Hale (Victoria line and Overground) located 0.9 miles away.

DESCRIPTION
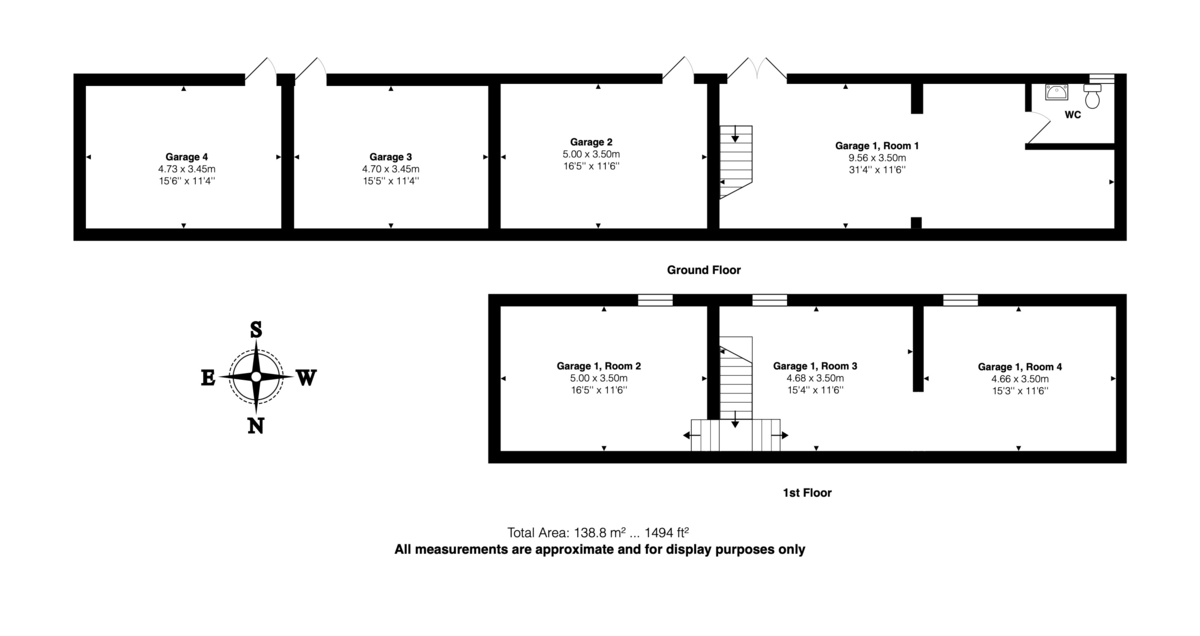
The property offers a mixture of different-sized lock-up storage units. These are considered suitable for a variety of uses, including warehouse, retail, gym, or office space, subject to the necessary consents.

ACCOMMODATION
Gross internal Area: 1,494 Sq M (138.8 Sq M)

AMENITIES
Secure Entrance
Electricity
Storage Space
Use Variety
Freehold Sale

OUTGOINGS
Parties are advised to contact the local authority to make their own enquiries

VIEWING
Strictly by appointment through Drivers & Norris

Tenure: Freehold


Location


Floorplan

Floorplan

EPC


*This mortgage calculator is provided for general information purposes only. It's intended to provide you with an estimate of your potential mortgage payments and does not constitute an offer of finance or advice. The calculations are based on the information you provide and do not take into account your individual needs and circumstances.

The calculator does not include all the costs you will need to pay when taking out a mortgage. Your actual mortgage payments may be higher or lower than the estimates provided by this calculator. The interest rates used in the calculations are subject to change and may not reflect the actual rates available in the market.

Please note that the calculator does not consider changes in interest rates over time, early repayment charges, or any other fees and charges that may apply to your mortgage. You should always seek professional advice before making any financial decisions.

Remember, your home may be repossessed if you do not keep up repayments on your mortgage.

Calculate Your Stamp Duty
£
Results
Stamp Duty To Pay:
Effective Rate:
Tax Band % Taxable Sum Tax

£ 0
£ 0
Your estimated gross rental yield would be:
0.00%

Drivers & Norris

407/409 Holloway Road, London, N7 6HP

Similar Properties

Seven Sister Road, South Tottenham
For Sale

Seven Sister Road, South Tottenham

0 Bed Commercial Property For Sale
£700,000
Tottenham, London
For Sale

Tottenham, London

4 Bed Shop For Sale
Guide Price £870,000
Seven Sisters Road, Tottenham
For Sale

Seven Sisters Road, Tottenham

0 Bed Commercial Property For Sale
£825,000