Willesden Lane

Commercial Property to Rent

£16,000 yearly

Description

LOCATION
Located on Willesden Lane within a mixed use terrace parade. The property is within proximity to multiple shopping and transport facilities of Willesden Green, such as Sainbsurys, German Doner Kebab, Costa Coffee, Dominos Pizza, as well as a variety of independent businesses.

DESCRIPTION
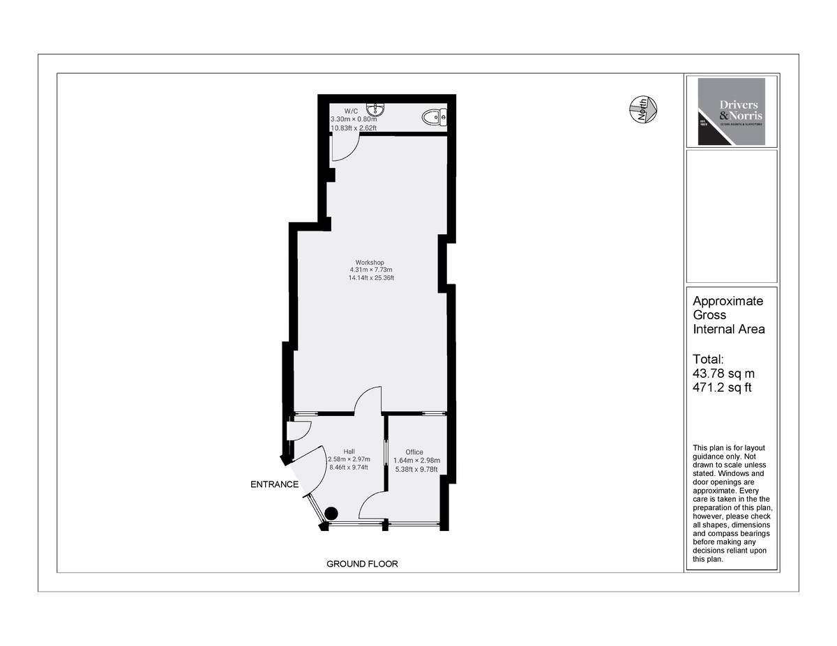
A ground floor self contained with class E use approx 471.2sqft. Comprising, a small office to the front, with a door opening to the main retail area, with access to a WC, plus further storage space to the rear.

ACCOMMODATION
Gross Internal Area: 471.2 Sq Ft (43.78 Sq M)

AMENITIES
Ground Floor
New Lease
WC
Kitchenette

TERMS
Available on a new Full Repairing and Insuring (FRI) lease outside the landlord & tenant act - terms to be agreed.

OUTGOINGS
Parties are advised to make their own enquiries with the local authority.

LEGAL COSTS
Ingoing tenant to be responsible for landlord legal costs.

VIEWING
Strictly by appointment through Drivers and Norris.


Location


Floorplan

Floorplan

EPC


Drivers & Norris

407/409 Holloway Road, London, N7 6HP