Emily Davison House, Carew Close

Commercial Property Under Offer

£25,000 yearly

Description

LOCATION
The property is located in a well known estate close to Seven Sisters Road, an extremely busy thoroughfare linking Holloway Road and Finsbury Park. Situated in this densely populated commercial and residential catchment area the location also boasts excellent transport links. Finsbury Park station (Victoria Line, Piccadilly Line, Overground) is 0.4 miles distance being an 8 minute walk. Numerous bus routes sevice the area.

Nearby retailers include a mixture of local and national businesses including, Costa Coffee, Poundland and McDonald’s along with a mixture of successful independent restaurants, cafes and retail.

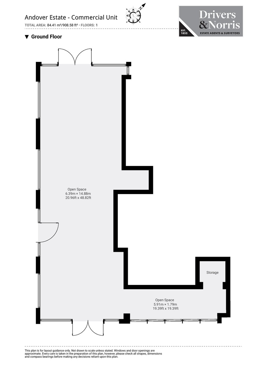
DESCRIPTION
Property is arranged on the ground floor of a newly built block of flats, with high ceilings and glass frontage. Incorporating 3 apsects, the unit has plenty of natural light. Suitable for a number of uses depending on landlord consent, the space would be an ideal community space, retail unit or space for a health and fitness use.

ACCOMMODATION
Gross Internal Area: 930 square feet (87 sq mt)

AMENITIES
New Build
Modern clean interior
High Ceilings
Glass frontage
3 aspects

TERMS
New Full repairing and Insuring Lease will be granted to the in-going tenant terms to be agreed, subject to periodic rent reviews.

OUTGOINGS
Parties are advised to make their own enquiries with the local authority.

LEGAL COSTS
Each party to bear its own legal costs.

SERVICE CHARGE
To be confirmed.

VIEWING
Strictly by appointment through Drivers and Norris.


Location


Floorplan

Floorplan

EPC


Drivers & Norris

407/409 Holloway Road, London, N7 6HP

Similar Properties

Camden Road, Holloway, Islington, London
To Rent

Camden Road, Holloway, Islington, London

0 Bed Commercial Property To Rent
£1,600 PCM
Holloway Road
To Rent

Holloway Road

0 Bed Commercial Property To Rent
£30,000 PCM
Seven Sisters Road, Finsbury Park, Islington, London
To Rent

Seven Sisters Road, Finsbury Park, Islington, London

0 Bed Commercial Property To Rent
£1,425 PCM